js750混凝土拌合站多少钱?750拌合站生产厂家
js750混凝土拌合站也是HZS35搅拌站,属小型混凝土搅拌设备,下面就由长城公司的750拌合站生产厂家为大家介绍js750混凝土拌合站多少钱、重量、功率、平面图等问题。
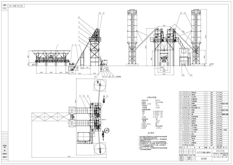
750拌合站设备平面图如下图所示
JS750B拌和机是混凝土搅拌机的型号,进料容量是1.2方,出料是0.75方,配套搅拌站的理论生产率是≤35方每小时,骨料粒径是80/60mm,搅拌叶片转速30.5r/min,叶片数量为18个,料斗提升速度为19.2m/min,整机重量大约在6800kg,卸料高度为1.6/3.8米。

js750拌合站产量是多少
JS750商品混凝土搅拌机进料容量1200升,每72秒出0.75方商品混凝土,所以JS750搅拌机也称之0.75方商砼拌和站,理论上JS750搅拌机每小时搅拌35方商品混凝土,实际中JS750搅拌机组成的简易商砼站每小时实际也能生产35立方米商品混凝土,一天按照8个小时的搅拌时间,JS750拌合机每天产量为280方商品混凝土。

js750混凝土拌合站重量是多少
JS750搅拌机整机重量为5.5吨左右,外形尺寸:运输状态:长3110毫米,宽2620毫米,高2580毫米;工作状态:长5025毫米,宽3100毫米,高5680毫米。可以让750拌合站生产厂家代发货,用户也可以按照上述重量及外形尺寸自行安排运输。
750拌合机、750拌合站功率为多少
JS750拌合机包含30千瓦的搅拌电机、7.5千瓦的卷扬电机、1.1千瓦的水泵电机,总功率40千瓦左右,JS750商品混凝土搅拌机每小时耗电40度左右。备注:此耗电量为我厂JS750搅拌机耗电量,不代表同行意见,客户需要对比清楚再决定购买哪个750拌合站生产厂家的750搅拌机。

建个js750的混凝土拌合站多少钱
一套JS750混凝土拌合站是由不同的750拌合站生产厂家生产,JS750混凝土搅拌机生产工艺不一样,价格也会有差别。应该多咨询多考察拌合站生产厂家,切勿贪图便宜。
以上便是采用了长城750拌合站生产厂家为大家详细介绍的js750混凝土拌合站多少钱、重量、功率、平面图等问题,如果您想了解成套750的拌合站多少钱?您可以咨询荥阳长城公司的在线客服,也可以拨打我们的技术电话进行咨询。
151-883-55510










